
清远融创春风桃源怎么样?2025清远融创春风桃源楼盘,户型配套,价值分析报告-凯时娱乐
别名:春风桃源
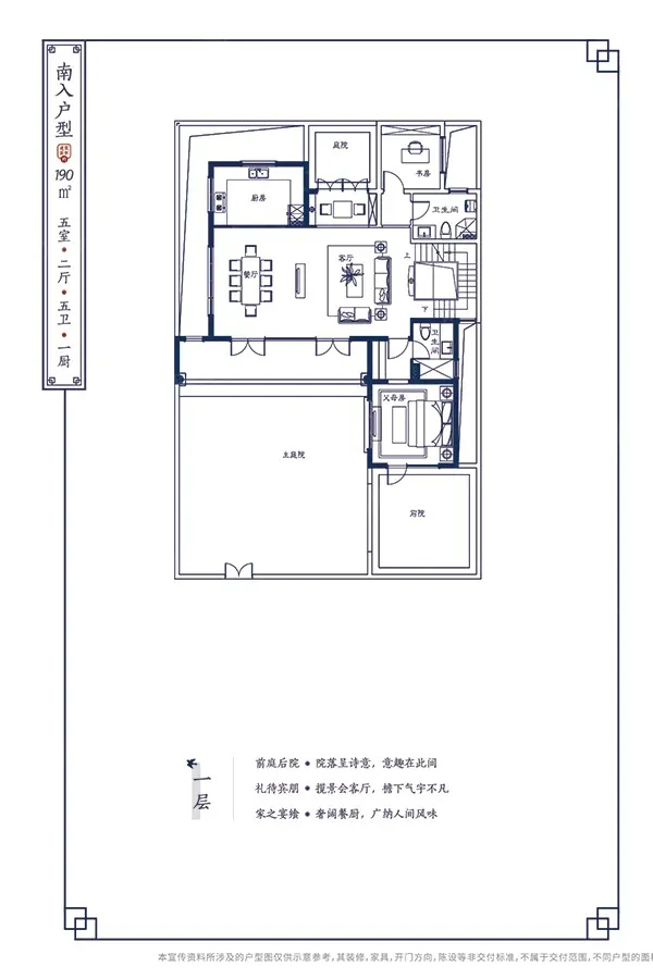
2025清远融创春风桃源户型配套 价值分析报告
整体概述
融创春风桃源楼盘位于清远佛冈清远佛冈京港澳高速汤塘出口左转(导航:融创春风岭南),由融创中国精心打造,项目正持续推售中,最新参考价格为25000元/平方米(毛坯均价约25000-28000元/㎡),通过对项目价格、项目户型、交通配套、教育配套、生活配套、小区规划等维度进行分析,融创春风桃源楼盘价值评分为8.8分。
当前,融创春风桃源价格为25000.00元/平方米(毛坯均价约25000-28000元/㎡)。
周边直线1km内有7个公交站周边公共交通较为便捷。
直线3km范围内有4个幼儿园;3个小学:龙山镇中心小学、官路唇小学、黄塱小学;1个中学:潖江中学。
注:上述学校相关信息仅为参考,不作为入学依据。具体入学政策可咨询您的专属经纪人
楼盘直线3km范围内有1个一级及以上医院,为医疗需求提供了保障。
楼盘周边3km范围内有1个商场,基本可满足日常购物需求。
楼盘周边生态环境优越,周边3km范围内有5个公园,距离最近的仅555m,非常方便日常休闲使用。
- 容积率
0.38
- 总户数
128
- 绿化率
8%
- 车位匹配
暂无
- 楼栋数
暂无资料
- 物业费
暂无
- 物业公司
融创物业服务集团有限公司
- 项目户型
10 - 交通配套
7.8 - 教育配套
9.2 - 生活配套
8.1 - 小区规划
8.5
- 免责声明: 1.数据来源:房天下fang.com,creis中指数据,中指▪项目云。 2.中指·楼盘价值评分是基于大数据对楼盘品质及周边配套情况进行全面测评得到的分数,满分为10分。评分体系包含项目价格、项目户型、区位交通、教育配套、生活配套、小区规划六大维度,覆盖二十余项具体指标。评价结果仅供参考,不作为交易依据使用。 3.文中楼盘信息均来自于项目开发商,价格受市场行情影响可能存在波动,最终价格及其他信息均以政府登记备案及项目开发商售楼处为准。 4.文中的距离信息均来自于百度地图测距,与实际情况可能略有差异,仅供参考。 5.因时间、市场、政策等会发生变化,文中信息仅供参考,不作为交易依据使用。 6.文中所有图片均有凯时娱乐的版权,如需转载请注明来源。
特别鸣谢

中指数据
楼盘概述:融创春风桃源,楼盘地址为,想了解更多有关融创春风桃源的房价、户型、产权年限、物业费、开发商、售楼电话、绿化率、周边配套等全方位楼盘信息,请持续关注融创春风桃源楼盘!